






Le revêtement extérieur du bâtiment est constitué de panneaux sandwich de couverture et de paroi.
Les structures légères sont des structures en acier composées de profils-Z dont le type est déterminé par la largeur du bâtiment:
(*) pour les largeurs >10m, il faut utiliser des câbles avec tendeurs pour stabiliser la structure.

Les profils-Z, se présentent comme un support idéal et solide pour bardage et toiture dans l’industrie du bâtiment.
Ils se posent facilement sur la charpente et garantissent une fixation bien équilibrée. Le profil -Z est un profilé formé à froid galvanisé, qui remplace facilement le bois ou le profil laminé.
| Type | H(mm) | B1(mm) | B2(mm) | t(mm) | X(mm) | Y(mm) | Dev. |
|---|---|---|---|---|---|---|---|
| Z140 | 140 | 65 | 60 | 1.50 / 2.50 | 50 | 45 | 285 |
| Z160 | 160 | 65 | 60 | 1.50 / 2.50 | 70 | 45 | 305 |
| Z180 | 180 | 65 | 60 | 1.50 / 2.50 | 80 | 50 | 325 |
| Z200 | 200 | 65 | 60 | 1.50 / 2.50 | 100 | 50 | 345 |
| Z220 | 220 | 65 | 60 | 1.50 / 2.50 | 120 | 50 | 365 |
| Z250 | 250 | 79 | 68 | 2.00 / 2.50 | 150 | 52 | 417 |
| Z300 | 300 | 95 | 85 | 2.00 / 2.50 | 190 | 56 | 500 |
Les profils Z peuvent être utilisés comme pannes de toiture et lisses de bardage. En comparaison avec des profils laminés à chaud, l’utilisation des pannes ou lisses en profil Z permet un allègement de poids jusqu’à 50%.
Le poids minimisé permet une manipulation facile.
| Profil Z | Profil I | |
|---|---|---|
| Poids (daN/m²) | 3,50 à 8,00 | > 7 |
| Portée par profil max (m) | 12 m | > 10 m |
| Finition | galvanisée | à traiter |
| Fixation | boulonnée | soudée ou boulonnée |
| Production | sur mesure et perforée | à scier et percer |
| Longueur (m) | jusqu’à 12 m | 12 m |
| Manipulation | légère | lourd |
| Type IPE | Poids (kg/ml) | Type Z | Epaisseur (mm) | Poids (Kg/ml) | GAIN DE POIDS |
|---|---|---|---|---|---|
| IPE80 | 6.00 | Z140 | 1.50 | 3.36 | 44% |
| Z140 | 2.00 | 4.48 | 25% | ||
| Z160 | 1.50 | 3.60 | 40% | ||
| IPE100 | 8.10 | Z160 | 2.50 | 5.98 | 26% |
| Z180 | 2.00 | 5.10 | 37% | ||
| Z220 | 1.50 | 4.31 | 47% | ||
| IPE120 | 10.40 | Z220 | 2.50 | 7.15 | 31% |
| Z250 | 2.00 | 6.55 | 37% | ||
| IPE140 | 12.90 | Z250 | 2.00 | 8.17 | 37% |
| Z300 | 2.00 | 7.85 | 39% |
Nos structures en acier entièrement galvanisé sont fabriquées à partir de profils – Z.
Les composants légers et faciles à assembler permettent de construire des structures optimisées.
Les composants légers et faciles à assembler permettent de construire des structures optimisées.
| LARGEURS | HAUTEURS | LONGUEURS | |||
|---|---|---|---|---|---|
| 8 m 12 m 15 m >15 m (sur demande) |
2,5 m 3 m 4 m |
12 m | 18 m | 24 m | 30 m |
| 36 m | 42 m | 48 m | 54 m | ||
| 60 m | 66 m | 72 m | 78 m | ||
| 84 m | 90 m | 96 m | 102 m | ||
Structure en acier galvanisé composée de profils- Z dont le type est déterminé par la largeur du bâtiment :
La structure est composée de :
La stabilité de la structure est assurée par des contreventements, des câbles en acier galvanisé de 6 mm de diamètre.
Les câbles évitent la flèche selon la pente du bâtiment en toiture, en lissage.
Fixation de la structure sur la fondation par :
Les profils Σ peuvent être utilisés comme pannes de toiture et lisses de bardage. En comparaison avec des profils laminés à chaud, l’utilisation des pannes ou lisses en profil Σ permet un allègement de poids jusqu’à 50%.
Le poids minimalisé permet une manipulation facile.
| LARGEURS | Profil Σ | Profil I |
|---|---|---|
| Poids (daN/m²) | 3,50 à 7,50 | > 7 |
| Portée par profil max (m) | 12 m | > 10 m |
| Finition | galvanisée | à traiter |
| Fixation | boulonnée | soudée ou boulonnée |
| Production | sur mesure et perforée | à scier et percer |
| Longueur (m) | jusqu’à 12 m | 12 m |
| Manipulation | légère | lourd |
| Type IPE | Poids (kg/ml) | Type Panne Σ | Epaisseur (mm) | Poids (Kg/ml) | GAIN DE POIDS |
|---|---|---|---|---|---|
| IPE80 IPE100 |
6.00 8.10 |
Σ160 | 1.50 | 3.65 | 39% |
| Σ160 | 2.50 | 6.08 | 25% | ||
| Σ180 | 2.00 | 5.18 | 36% | ||
| IPE120 | 10.40 | Σ220 | 1.50 | 4.36 | 47% |
| Σ220 | 2.50 | 7.26 | 30% |
Les profils Σ se présentent comme un support idéal et solide pour bardage et toiture dans l’industrie du bâtiment.
Ils se posent facilement sur la charpente et garantissent une fixation bien équilibrée.
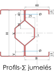
| Type | H(mm) | B1(mm) | t (mm) | X (mm) | Y(mm) | Dev. |
|---|---|---|---|---|---|---|
| Σ160 | 160 | 60 | 1.50 / 2.50 | 120 | 20 | 310 |
| Σ180 | 180 | 60 | 1.50 / 2.50 | 140 | 20 | 330 |
| Σ200 | 200 | 60 | 1.50 / 2.50 | 160 | 20 | 350 |
| Σ220 | 220 | 60 | 1.50 / 2.50 | 180 | 20 | 370 |
Le meilleur rapport poids / résistance mécanique Le double retour augmente la rigidité du profil et améliore ses caractéristiques mécaniques
Caractéristiques techniquesNos structures en acier entièrement galvanisé sont fabriquées à partir de profils-Σ.
Les composants légers et faciles à assembler permettent de construire des structures optimisées.
La construction de bureaux, de maisons, de bases de vie, de bâtiments agricoles peut ainsi se faire d’une manière rapide et efficace.
| LARGEURS | HAUTEURS | LONGUEURS | |||
|---|---|---|---|---|---|
| 8 m 12 m |
2,5 m 3 m 4 m |
12 m | 18 m | 24 m | 30 m |
| 36 m | 42 m | 48 m | 54 m | ||
| 60 m | 66 m | 72 m | 78 m | ||
| 84 m | 90 m | 96 m | 102 m | ||
Structure en acier galvanisé composée de profils-Σ dont le type est déterminé par la largeur du bâtiment :
La structure est composée de :
La stabilité de la structure est assurée par des contreventements, des câbles en acier galvanisé de 6 mm de diamètre.
Les câbles évitent la flèche selon la pente du bâtimen en toiture, en lissage.
Fixation de la structure sur la fondation par :

Les bâtiments complets sont livrés en kit et se composent de :
Les projets des bâtiments peuvent être optimisés en utilisant de plus grandes portées de pannes.Nous proposons une gamme de profils Z et Σ utilisés dans des bâtiments avec des portées allant jusqu’à 12 m pour des solutions légères et économiques :

Stunas industries
Fondée en 1995, STUNAS INDUSTRIES était à l’origine fabricant de profils en acier utilisés en couverture sèche et bardage pour les bâtiments industriels.
Aujourd’hui la STUNAS INDUSTRIES est une entreprise industrielle innovante qui a pour activité principale la fabrication et la commercialisation de panneaux sandwich pour l’isolation de portes frigorifiques et de chambres froides dédié... en savoir plus
